一ツ池ビル 3階西

13.2万円(0.55万円/坪)

管理 / 共益費 -

静岡県浜松市中央区萩丘3丁目1-30

東海道本線「浜松」駅バス20分遠鉄バス「市営グランド」停歩4分

遠州鉄道「上島」駅徒歩18分

遠州鉄道「自動車学校前」駅徒歩26分

賃料 / 坪単価
13.2万円 / 0.55万円
敷金(保証金)
3ヶ月(-)
所在地
静岡県浜松市中央区萩丘3丁目1-30
交通

東海道本線浜松」駅 バス20分 遠鉄バス「市営グランド」 停歩4分

遠州鉄道上島」駅 徒歩18分

遠州鉄道自動車学校前」駅 徒歩26分

管理 / 共益費
-
礼金
0ヶ月
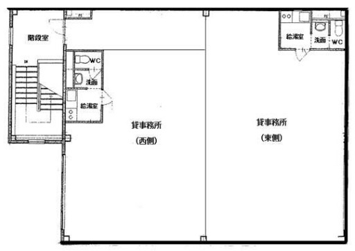
建物面積
20.05坪(66.29㎡)
築年月
2001年6月(築24年)

セールスポイント

上下水、給湯室、洗面所、トイレついてます。駐車場は4台無料です

ポイント

礼金不要 上階無し 事務所相談 駐車3台可 駐車場1台無料

担当者のコメント

テナント事業部 鈴木 圭

上下水、給湯室、洗面所、トイレついてます。駐車場は4台無料です

基本情報

保証金
-
敷引 / 償却
- / -
建物面積
66.29㎡
所在階 / 階建て
3階 / 3階建
建物構造
鉄骨造
築年月
2001年6月(築24年)
種別
店舗事務所
契約期間
3年
保証会社 / 料金
必加入 / ジェイリース
初回保証委託料賃料総額100% 更新保証料賃料総額10%
緊急連絡先が必要です。
駐車場
空有(4台) 0円
現況
賃貸中
入居可能時期
2025年11月上旬予定
取引条件の
有効期限
2025年11月17日

設備条件

設備条件
  • 閑静な住宅地 / 事務所可 / 眺望良好 / 残置物有 / 公営水道 / 公共下水 / 角部屋 / 初期費用カード決済可

その他

賃貸区分
一般
保険会社 / 料金
有  / -
取引態様
一般媒介
物件番号
48269365
情報更新日
2025年11月03日
次回更新予定日
2025年11月17日
備考
借家人賠償保険加入要 賃貸保証契約必須(初回賃料総額100% 更新保証料賃料総額10% 

近隣の物件

  1. 龍門堂1F店舗

    浜松市中央区千歳町

    - (82.03㎡)

    38.5万円(1.55万円/坪)

  2. ラ・ソーティム・ドゥ・プリムベル

    浜松市中央区三方原町

    - (34.65㎡)

    8万円(0.76万円/坪)

  3. 高丘北3丁目住居付き店舗

    浜松市中央区高丘北3丁目

    - (29.81㎡)

    8.25万円(0.92万円/坪)

  4. コスモ第11ビル

    浜松市中央区肴町

    27.83坪 (92.00㎡)

    44万円(1.58万円/坪)

一ツ池ビル

一ツ池ビル

13.2万円

-

20.05坪(66.29㎡)

お気軽にお問い合わせください

無料お問い合わせ

Room's!賃貸 売買テナント事業部

053-570-6562

9:00~18:00

(休:毎週水曜日)